Lovely Studio Apartment

From a tiny 11×19 space at the back of a garage with the ceiling literally caving in and falling apart, the Home Design Coach worked to create this sheik one-room studio apartment. There had been an apartment of sorts here before, but the bathroom consisted of barely more than a closet where one could sit on the toilet, wash one’s hands, and take a shower all at the same time! The back of the door was part of the shower “stall.” All of that changed dramatically, creating a rental space the owners never thought possible.

Lovely Studio Apartment

Open Plan Concept Remodel

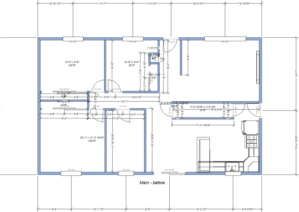
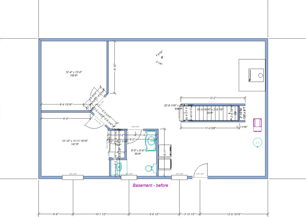
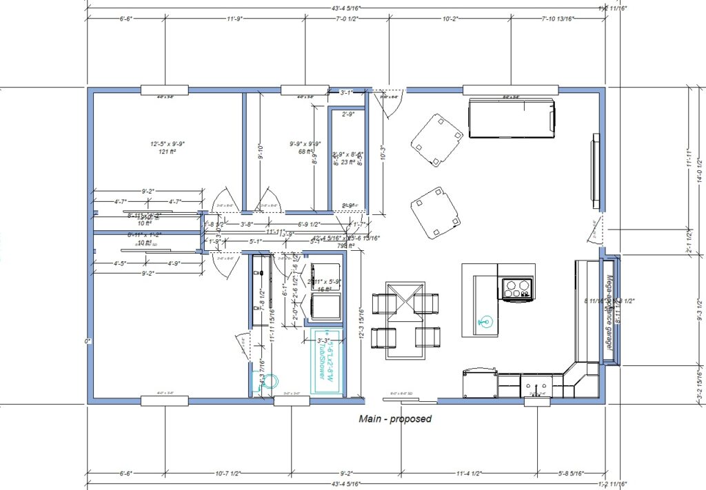
What do you do with a 70’s style house with a staircase dividing the living space from the kitchen/dining space? Why, find a place to move the stairs and open up the floor plan, of course! The Home Design Coach specializes in being able to visualize space, both actual and proposed, and find ways to bring your design/space dreams to reality!

Open Plan Concept Remodel

Remodeled Turn-of-the-Century Bungalow

Looking to flip an older home? Or do you love the charm of older homes but want an open concept? The Home Design Coach can find ways to turn what was once in style to what you want YOUR home to be like. Designing spaces and floor plans that work for you, either from scratch or from existing spaces and homes is our specialty!

Remodeled Turn-of-the-Century Bungalow